Description
Cet appartement duplex de 6 pièces, d'une surface de 143m2 PPE (terrasse et balcon en sus), est situé dans la commune de Plan-Les-Ouates. Il bénéficie d'une disposition traversante, comprenant deux niveaux. Le niveau supérieur est destiné à la partie jour, et le niveau inférieur à la partie nuit.
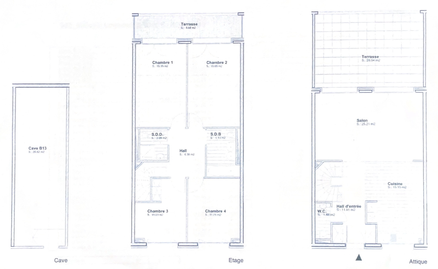
Appartement 6 pièces au rez-de-chaussée de 143 m2 PPE
Partie jour :
Partie nuit :
Remarques supplémentaires :
N'hésitez pas à nous contacter pour organiser une visite !
Appartement 6 pièces au rez-de-chaussée de 143 m2 PPE
Partie jour :
- Un hall d’entrée avec armoire encastrée (carrelage) ;
- Un WC visiteurs (lavabos, WC) ;
- Une spacieux séjour / salle à manger avec accès à la terrasse ;
- Une cuisine équipée ouverte sur le séjour avec accès à la terrasse (carrelage).
Partie nuit :
- Quatre chambres à coucher de respectivement ± 16 m2, 15 m2, 12 m2 et 10 m2 ;
- Deux salles d’eau (douche, baignoire, lavabo, WC) ;
- Un dégagement desservant les chambres.
Remarques supplémentaires :
- Un balcon de ± 10 m2 ;
- Une terrasse de ± 30 m2 ;
- Deux places extérieures ;
- Une grande cave de ± 32 m2 ;
- Immeuble avec ascenseur.
N'hésitez pas à nous contacter pour organiser une visite !
Conveniences
Neighbourhood
- Villa area
- Shops/Stores
Outside conveniences
- Balcony/ies
- Terrace/s
- Parking
Inside conveniences
- Open kitchen
- Cellar
Equipment
- Fitted kitchen
- Laundry
- Connections for washing tower
Condition
- Good
Distances
Public transports
310 m
15'






